400-8090-660
首 页
优选好房
传统办公
共享办公
委托&投放
Bliss Office
>
优选好房
>
长泰企业天地广场
长泰企业天地广场125平精装修带家具,带隔断,家具齐全,水电网全包
分享
1.79
万元/月
单价:4.7元/㎡/天
物业费:30.0元/㎡/月
125㎡
建筑面积
10-15人
容纳工位
带装修家具
装修
闸 北-西藏北路
10号线-天潼路、12号线-天潼路
长泰企业天地广场
房源专属顾问为您服务
徐佳乐
Jerry
13052210023
预约看房
基本信息
使用率约
68%
可否注册
可以
免租时间
1个月
最早可租
随时
最短租期
2年
装修备注
精装修带家具,拎包入住
看房时间
随时
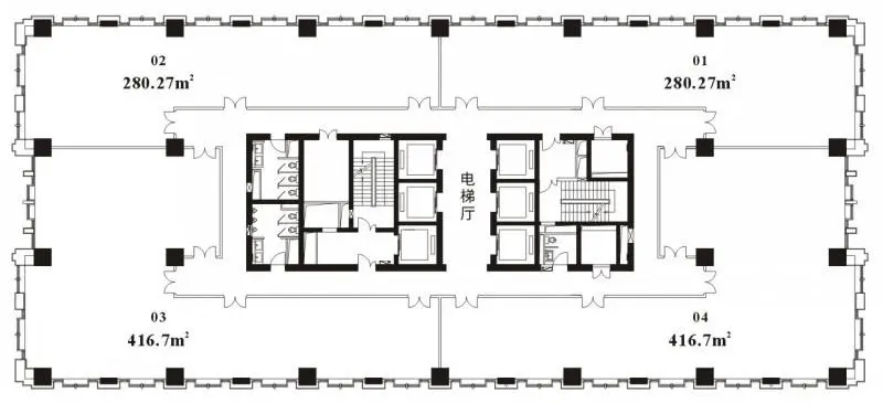
户型格局、图片
所属楼盘
查看楼盘详情 >
长泰企业天地广场
总楼层
27层
单层面积
1200平
竣工年月
2013年
物业公司
仲量联行
空调类型
VAV中央空调系统
热门房源
联通国际大厦130平精装修带家具,2个隔断,拎包入驻
130㎡ / 10-14人
1.58
万元/月
旭辉企业大厦 稀缺小户型 293平 标准交付 采光好 价格好谈
293㎡ / 30
7.13
万元/月
淮海路商圈 嘉华中心303平房源出租 落地窗 双面采光
303㎡ / 30
7.37
万元/月
宝华大厦200平出租,精装带隔断,7/13号线长寿路站上盖
200㎡ / 15-22人
3.04
万元/月
泰康保险大厦756方,高区景色优美,户型方正
756㎡ / 70-80
22.08
万元/月
嘉里中心563方,会所级豪华装修,仅此一套
563㎡ / 50-70人
25.69
万元/月
创享塔创园70平米Loft户型,市区创意园稀有户型
70㎡ / 5-10人
0.64
万元/月
中信泰富广场20-25人办公室,带双经理室,精装全配
150㎡ / 20-25人
5.93
万元/月
宝华国际广场,高区双面采光,122平,房型方正
122㎡ / 10-15人
1.48
万元/月
公共交通
Public transit
长泰企业天地广场
闸 北西藏北路海宁路899号
周边楼盘推荐
达邦协作广场
大宁音乐广场H座•大宁中心广场一期
宝矿洲际中心
宝华国际广场